This luxury property occupies a breath-taking and extremely enviable location, which affords stunning 270-degree sweeping ocean views encompassing the hills, town and beachscapes of Patong Bay out to the open ocean and sunset beyond.
Following the iconic and contemporary themes of the Original Vision architecture, the villa extols bold angles expressed with clean, minimalist lines.
This premium location would be difficult to beat. Samsara is situated along the ‘Millionaire’s Mile’ between the world-class Kamala beach and SE Asia’s nightlife capital, Patong Beach. Both are easily accessible with less than 10 minutes of driving.
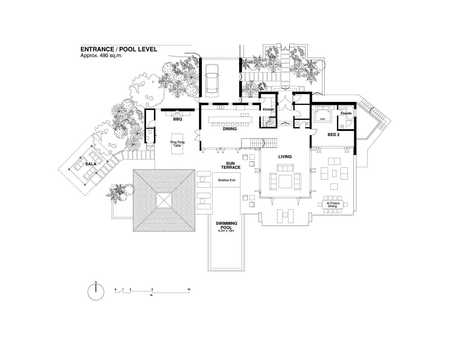
The five-bedroom property is approx. 900 sqm of living space over two main levels. The property is on a total of 2,977 Sq.m of Chanote titled land, which comprises two plots in this exclusive & private estate. The villa sits on a plot of 1,608 sqm or just over one rai.
Whilst the adjacent plot of 1,369 Sq.m is currently used as a garden. This additional land plot can be sold on to be built upon by a new owner, or to increase the size of the existing property, or for a completely new standalone sea view villa. Or leave it as is to provide an extra level of privacy and peacefulness.
The luxury property has a thriving and long-standing rental history with consistent five-star reviews.
Highlights
- Hilltop Sea View Villa
- 5 Bedrooms
- 923 sqm Built Area
- 2,977 Sqm Land
- 13 x 4m Swimming Pool
- 180′ Patong Bay Views
- Built 2005
- Renovated 2021
- Full commercial Kitchen
- Exclusive estate
- Space to build more
- Proven Rental Income
THE VILLA
Upon entry, the villa welcomes you with a stunning cathedral-like space, with vaulted ceilings and a fantastic floor to ceiling bi-fold glass door system to frame the spectacular panoramic views. The view sweeps from the night lights of Patong in the South, to the open ocean and its blue waters.
The second bedroom is located on this floor, whilst the impressive master and three further bedrooms are on the lower garden level. Also, on this garden level is a fully equipped home cinema, a communal lounge area, and a pool table.
VILLA CONDITION
The luxury property has been lovingly maintained and is in excellent condition. The villa’s sizeable open-plan kitchen/dining area was recently renovated. The long-fixed dining table area provides a focal point for socializing and dining for 18 people. There is a substantial additional commercial kitchen with stainless steel fixtures for large-scale food preparation for entertaining & events.
In addition, the new entrance stairs are a striking addition unique to the estate; new Italian ceramic floors were laid across most of the property in 2022, and updated bathrooms and replacement cedar wood shingles complete this high-quality villa.
The professional kitchen works incredibly well, with the chef pushing out fabulous food for many guests. Event planners are particularly impressed as the villa is a prime party venue with seating for 18 overlooking the ocean and no need to bring catering equipment.
The property has extensive alfresco dining areas, including an outdoor BBQ and a large dining table.
Perhaps the most magical spot in the property is a covered hilltop sala area which provides an intimate setting for relaxing and fully appreciating the spectacular views across the bay and sunset. Further exterior facilities include expansive terraces and sun decks with a 13m infinity-edge swimming pool. The pool area and house have a top-end Sonos sound system.
OWNERSHIP
This luxury property is one of the very few West Coast Sea view properties available with freehold ownership of the land and the much favoured and secure Chanote land title. Simple, direct, freehold ownership.
SAMSARA
The Samsara estate is wonderfully positioned on its own headland overlooking the open ocean across Patong Bay and Patong Beach. It is private and secure, yet only a 5-minute drive to downtown Patong and Kamala Beach.
The estate has the most complete infrastructure of any residential only estate in Phuket. It has a dedicated one million litre water storage facility, an electricity generator and a full fire hydrant system. There is a dedicated management office from which villas and the estate are maintained to an excellent standard, and where rentals can be arranged and managed.

